Уважаемые покупатели, обращаем внимание, что по умолчанию тумба идёт в комплектации "покрытие ПЛЁНКА". По вашему желанию, дополнительно, можно выбрать комплектацию "покрытие ЭМАЛЬ".
Размеры:
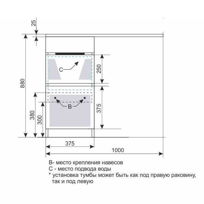
- Тумба напольная (ш/г/в): 375x480x880 мм
- Раковина Эстет Даллас 100 правая (ш/г/в): 1000x480x145 мм
Особенности:
- Для производства фасадов используется самая толстая пленка в 2,8 микрон (производство Южная Корея), она создаёт сверхровную поверхность и придаёт глянцевый эффект;
- Фасадная часть и боковины изготавливаются из высококачественного влагостойкого МДФ "Kronospan", а внутренние ящики из ЛДСП "Kronospan";
- Мебельная фурнитура и направляющие скрытого монтажа от марки "Boyard";
- Внутренние ящики собираются при помощи евро-винтов, они позволяют увеличить срок эксплуатации и способствуют дополнительной жесткости;
- При производстве изделия используются дюбель-стяжки от "Hettich" (Германия);
- Использование клея "Henkel" (Германия) позволяет при натяжении плёнки проклеить каждый элемент изделия, по всей поверхности;
- Фасады из МДФ обработаны кромочным материалом "Rehau" (Германия) 4 мм;
- Все открытые элементы при сборке мебели (в том числе, евро-винты и дюбель-стяжки) закрываются надежными заглушками "Hettich";
- Для упаковки изделий применяется 5-ти слойный картон Высшего Класса.

 
  
 


 
 


















